Top.Mail.Ru

Родниковая ул., д. 18

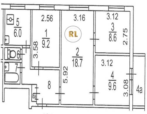
База каталог, Кол-во подъездов: 4, II-49Д, Москва, Солнцево, Пассажирский лифт: 4, От метро: 2030, Западный, да, Наименьшее кол-во этажей: 9, Наибольшее кол-во этажей: 9, Боровское шоссе, Кол-во помещений: 144, Кол-во нежилых помещений: 0, Год ввода в эксплуатацию: 1979, 4-комн, Кол-во жилых помещений: 144, дом 18, нет, да, да, да, нет, нет, Грузовых лифтов: 0, Год постройки: 1979, Родниковая улица, 37.385762, 55.634512
Свяжитесь со мной на счет цены
10 дн.
V55S634512L37S385762V

На карте


Условия сделки

Источник


Старт продаж

Возможно заинтересует