Top.Mail.Ru

улица Введенского, д. 26

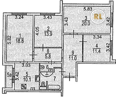
База каталог, Кол-во подъездов: 1, КОПЭ, Москва, Коньково, Пассажирский лифт: 2, От метро: 1030, Юго-Западный, да, Наименьшее кол-во этажей: 1, Наибольшее кол-во этажей: 22, Беляево, Кол-во помещений: 176, Кол-во нежилых помещений: 1, Год ввода в эксплуатацию: 2001, 4-комн, Кол-во жилых помещений: 175, дом 26, нет, да, да, да, да, да, Имеется, Грузовых лифтов: 1, Год постройки: 2001, улица Введенского, 37.534352, 55.635716
Свяжитесь со мной на счет цены
10 дн.
V55S635716L37S534352V

На карте


Условия сделки

Источник


Старт продаж

Возможно заинтересует