Top.Mail.Ru

улица Скульптора Мухиной, д. 10, к. 2

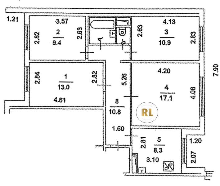
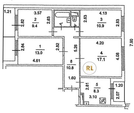
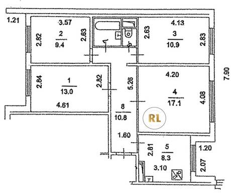
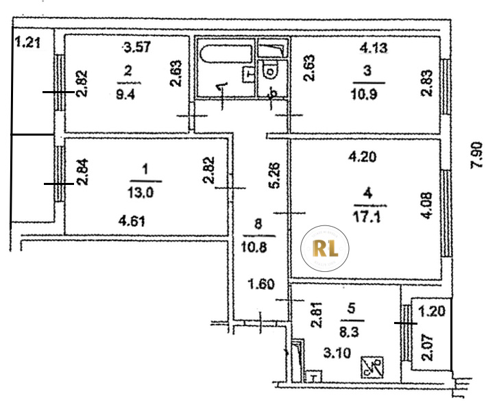
База каталог, Кол-во подъездов: 4, Имеется, П-30, Москва, Ново-Переделкино, Пассажирский лифт: 8, От метро: 1020, Западный, да, Наименьшее кол-во этажей: 1, Наибольшее кол-во этажей: 14, Новопеределкино, Кол-во помещений: 222, Кол-во нежилых помещений: 2, Год ввода в эксплуатацию: 1991, 4-комн, Кол-во жилых помещений: 220, дом 10, корпус 2, нет, да, да, да, да, да, Имеется, Грузовых лифтов: 0, Год постройки: 1991, улица Скульптора Мухиной, 37.341367, 55.640604
Свяжитесь со мной на счет цены
10 дн.
V55S640604L37S341367V

На карте


Условия сделки

Источник


Старт продаж

Возможно заинтересует