Top.Mail.Ru

улица Скульптора Мухиной, д. 5

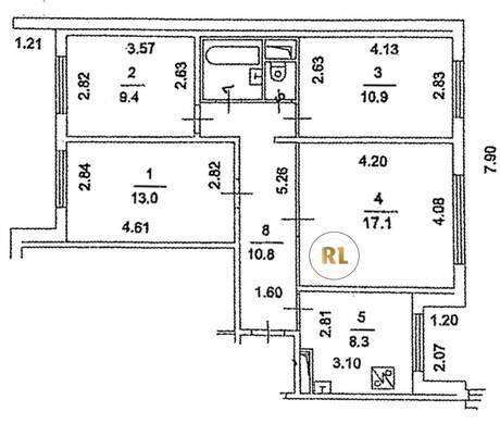
База каталог, Кол-во подъездов: 6, Имеется, П-30, Москва, Ново-Переделкино, Площадь парковки: 0, Пассажирский лифт: 12, От метро: 720, Западный, нет, Наименьшее кол-во этажей: 14, Наибольшее кол-во этажей: 14, Новопеределкино, Кол-во помещений: 332, Кол-во нежилых помещений: 1, Год ввода в эксплуатацию: 1989, 4-комн, Кол-во жилых помещений: 331, В, дом 5, нет, да, да, да, да, да, Имеется, Грузовых лифтов: 0, Год постройки: 1989, улица Скульптора Мухиной, 37.345374, 55.640843
Свяжитесь со мной на счет цены
10 дн.
V55S640843L37S345374V

На карте


Условия сделки

Источник


Старт продаж

Возможно заинтересует