Top.Mail.Ru

Волынская ул., д. 10

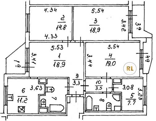
База каталог, Кол-во помещений: 394, П-44T, Москва, Солнцево, Площадь парковки: 0, Пассажирский лифт: 6, От метро: 1660, Западный, нет, Наименьшее кол-во этажей: 17, Наибольшее кол-во этажей: 17, Солнцево, Кол-во подъездов: 6, Год ввода в эксплуатацию: 2003, Кол-во нежилых помещений: 4, 4-комн, Кол-во жилых помещений: 390, дом 10, нет, да, да, да, нет, нет, Грузовых лифтов: 6, Год постройки: 2003, Волынская улица, 37.411247, 55.643505
Свяжитесь со мной на счет цены
10 дн.
V55S643505L37S411247V

На карте


Условия сделки

Источник


Старт продаж

Возможно заинтересует