Top.Mail.Ru

Новочеркасский бульвар, д. 14

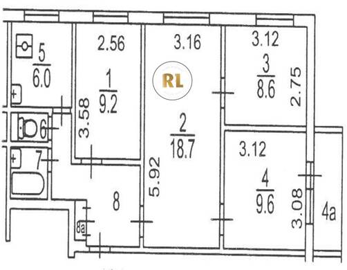
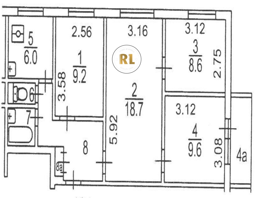
База каталог, Кол-во подъездов: 8, II-49Д, Москва, Марьино, Площадь парковки: 0, Пассажирский лифт: 8, От метро: 1930, Юго-Восточный, нет, Наименьшее кол-во этажей: 9, Наибольшее кол-во этажей: 9, Марьино, Кол-во помещений: 292, Кол-во нежилых помещений: 9, Год ввода в эксплуатацию: 1980, 4-комн, Кол-во жилых помещений: 283, Не присвоен, дом 14, нет, да, да, да, нет, нет, Имеется, Грузовых лифтов: 0, Год постройки: 1980, Новочеркасский бульвар, 37.717645, 55.645095
Свяжитесь со мной на счет цены
10 дн.
V55S645095L37S717645V

На карте


Условия сделки

Источник


Старт продаж

Возможно заинтересует