Top.Mail.Ru

Волынская ул., д. 3

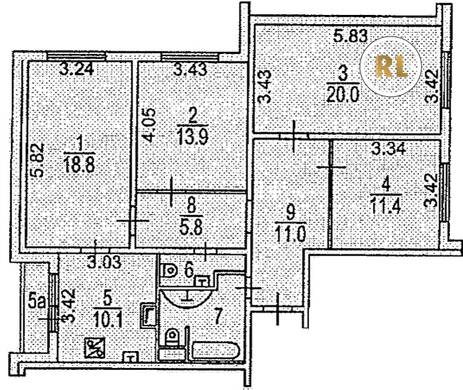
База каталог, Кол-во подъездов: 5, КОПЭ, Москва, Солнцево, Пассажирский лифт: 10, От метро: 1980, Западный, да, Наименьшее кол-во этажей: 22, Наибольшее кол-во этажей: 22, Говорово, Кол-во помещений: 672, Кол-во нежилых помещений: 241, Год ввода в эксплуатацию: 1998, 4-комн, Кол-во жилых помещений: 431, дом 3, нет, да, да, да, нет, нет, Грузовых лифтов: 5, Год постройки: 1998, Волынская улица, 37.416700, 55.645141
Свяжитесь со мной на счет цены
10 дн.
V55S645141L37S416700V

На карте


Условия сделки

Источник


Старт продаж

Возможно заинтересует