Top.Mail.Ru

Новочеркасский бульвар, д. 20, к. 3

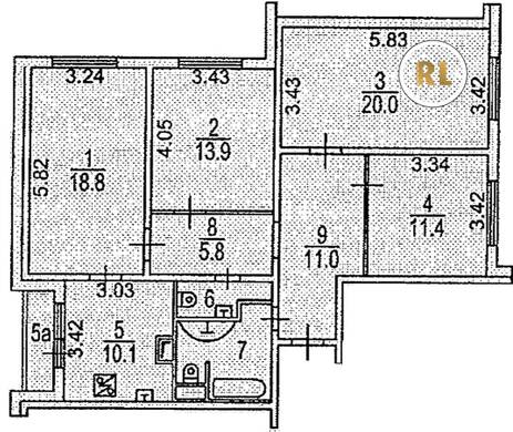
База каталог, Кол-во помещений: 174, Имеется, КОПЭ, Москва, Марьино, Площадь парковки: 0, Пассажирский лифт: 4, От метро: 1800, Юго-Восточный, нет, Наименьшее кол-во этажей: 1, Наибольшее кол-во этажей: 22, Марьино, Кол-во подъездов: 2, Год ввода в эксплуатацию: 1988, Кол-во нежилых помещений: 0, 4-комн, Кол-во жилых помещений: 174, дом 20, корпус 3, нет, да, да, да, нет, нет, Имеется, Грузовых лифтов: 2, Год постройки: 1988, Новочеркасский бульвар, 37.720043, 55.645151
Свяжитесь со мной на счет цены
10 дн.
V55S645151L37S720043V

На карте


Условия сделки

Источник


Старт продаж

Возможно заинтересует