Top.Mail.Ru

Поречная ул., д. 5/14

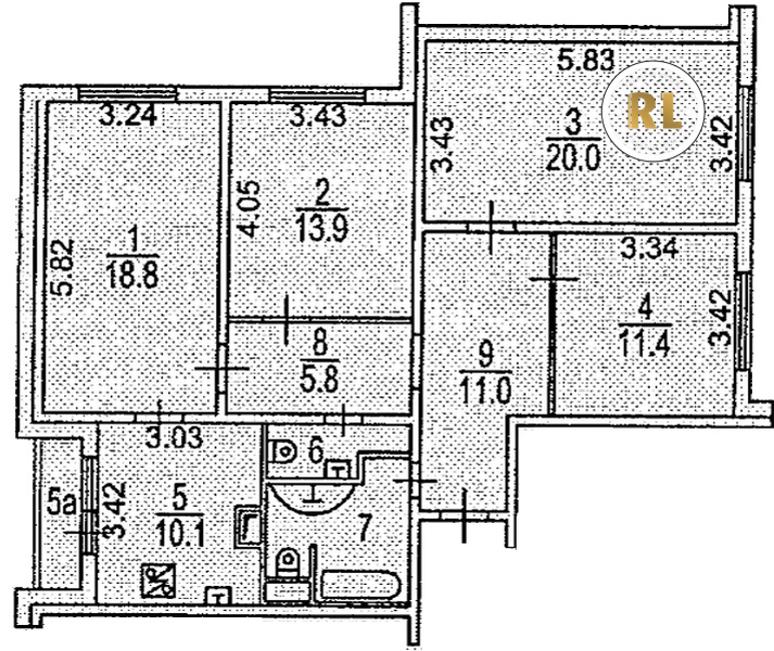
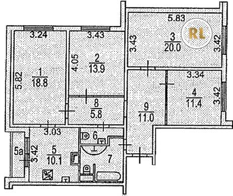
База каталог, Кол-во подъездов: 3, КОПЭ, Москва, Марьино, Площадь парковки: 0, Пассажирский лифт: 3, От метро: 880, Юго-Восточный, нет, Наименьшее кол-во этажей: 22, Наибольшее кол-во этажей: 22, Марьино, Кол-во помещений: 258, Кол-во нежилых помещений: 6, Год ввода в эксплуатацию: 1995, 4-комн, Кол-во жилых помещений: 252, Не присвоен, дом 5/14, нет, да, да, да, да, да, Имеется, Грузовых лифтов: 3, Год постройки: 1995, Поречная улица, 37.752814, 55.645217
Свяжитесь со мной на счет цены
10 дн.
V55S645217L37S752814V

На карте


Условия сделки

Источник


Старт продаж

Возможно заинтересует