Top.Mail.Ru

Лукинская ул., д. 14

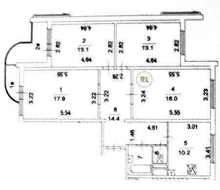
База каталог, Кол-во подъездов: 5, П-3M, Москва, Ново-Переделкино, Площадь парковки: 0, Пассажирский лифт: 5, От метро: 1320, Западный, нет, Наименьшее кол-во этажей: 17, Наибольшее кол-во этажей: 17, Новопеределкино, Кол-во помещений: 330, Кол-во нежилых помещений: 10, Год ввода в эксплуатацию: 2006, 4-комн, Кол-во жилых помещений: 320, Не присвоен, дом 14, нет, да, да, да, да, нет, Имеется, Грузовых лифтов: 5, Год постройки: 2006, Лукинская улица, 37.341179, 55.646878
Свяжитесь со мной на счет цены
10 дн.
V55S646878L37S341179V

На карте


Условия сделки

Источник


Старт продаж

Возможно заинтересует