Top.Mail.Ru

Производственная ул., д. 4, к. 2

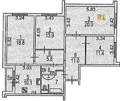
База каталог, Кол-во подъездов: 3, КОПЭ, Москва, Солнцево, Пассажирский лифт: 6, От метро: 139, Западный, да, Наименьшее кол-во этажей: 22, Наибольшее кол-во этажей: 22, Солнцево, Кол-во помещений: 242, Кол-во нежилых помещений: 5, Год ввода в эксплуатацию: 2004, 4-комн, Кол-во жилых помещений: 237, дом 4, корпус 2, да, да, да, да, да, да, Грузовых лифтов: 3, Год постройки: 2004, Производственная улица, 37.388188, 55.648794
Свяжитесь со мной на счет цены
10 дн.
V55S648794L37S388188V

На карте


Условия сделки

Источник


Старт продаж

Возможно заинтересует