Top.Mail.Ru

Новочеркасский бульвар, д. 29

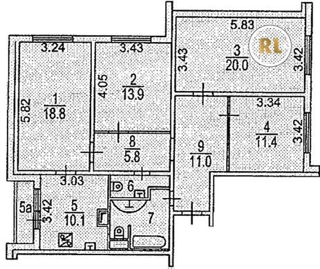
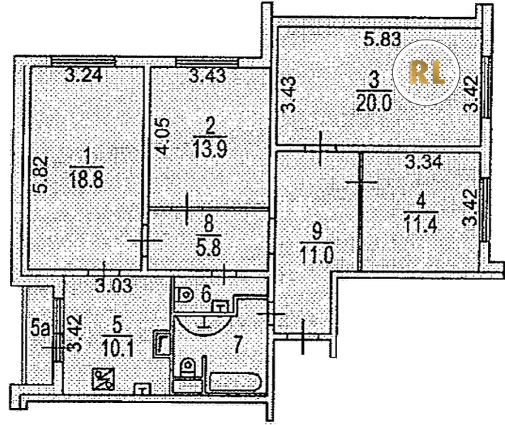
База каталог, Кол-во подъездов: 4, Имеется, КОПЭ, Москва, Марьино, Пассажирский лифт: 8, От метро: 590, Юго-Восточный, да, Наименьшее кол-во этажей: 22, Наибольшее кол-во этажей: 22, Марьино, Кол-во помещений: 340, Кол-во нежилых помещений: 2, Год ввода в эксплуатацию: 1988, 4-комн, Кол-во жилых помещений: 338, С, дом 29, да, да, да, да, да, да, Имеется, Грузовых лифтов: 4, Год постройки: 1988, Новочеркасский бульвар, 37.736195, 55.649195
Свяжитесь со мной на счет цены
10 дн.
V55S649195L37S736195V

На карте


Условия сделки

Источник


Старт продаж

Возможно заинтересует