Top.Mail.Ru

Производственная ул., д. 2, к. 1

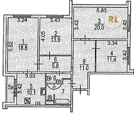
База каталог, Кол-во помещений: 412, Имеется, КОПЭ, Москва, Солнцево, Площадь парковки: 0, Пассажирский лифт: 10, От метро: 233, Западный, нет, Наименьшее кол-во этажей: 22, Наибольшее кол-во этажей: 22, Солнцево, Кол-во подъездов: 5, Год ввода в эксплуатацию: 2005, Кол-во нежилых помещений: 1, 4-комн, Кол-во жилых помещений: 411, дом 2, корпус 1, да, да, да, да, да, да, Имеется, Грузовых лифтов: 5, Год постройки: 2005, Производственная улица, 37.387846, 55.649500
Свяжитесь со мной на счет цены
10 дн.
V55S649500L37S387846V

На карте


Условия сделки

Источник


Старт продаж

Возможно заинтересует