Top.Mail.Ru

Подольская ул., д. 27, к. 1

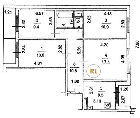
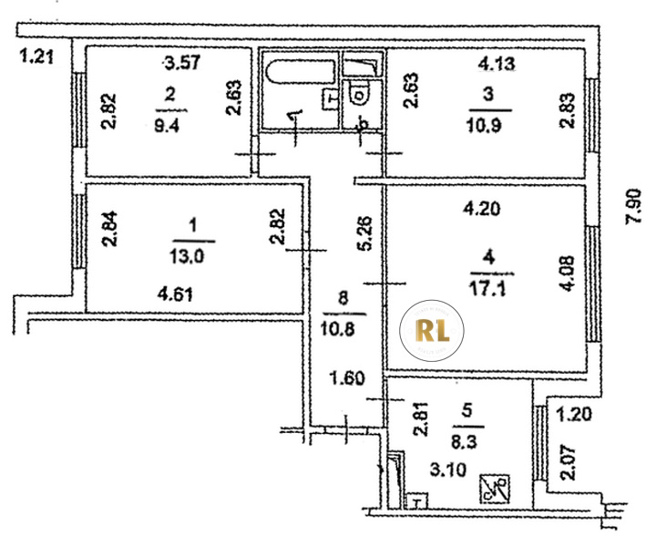
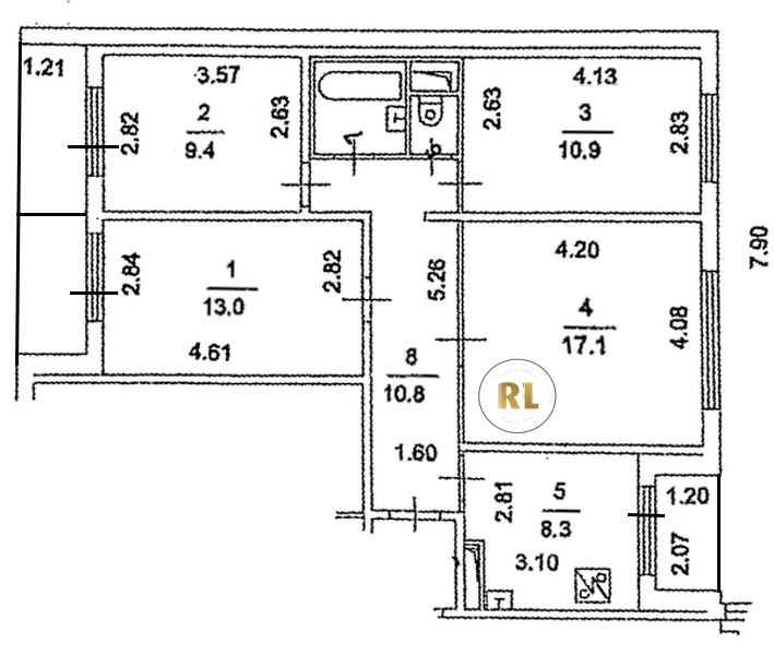
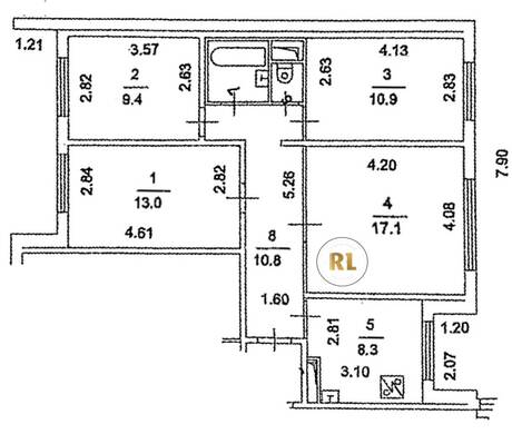
База каталог, Кол-во подъездов: 2, Имеется, П-30, Москва, Марьино, Пассажирский лифт: 4, От метро: 2430, Юго-Восточный, да, Наименьшее кол-во этажей: 14, Наибольшее кол-во этажей: 14, Марьино, Кол-во помещений: 112, Кол-во нежилых помещений: 1, Год ввода в эксплуатацию: 1984, 4-комн, Кол-во жилых помещений: 111, Не присвоен, дом 27, корпус 1, нет, да, да, нет, нет, нет, Имеется, Грузовых лифтов: 0, Год постройки: 1984, Подольская улица, 37.708823, 55.649926
Свяжитесь со мной на счет цены
10 дн.
V55S649926L37S708823V

На карте


Условия сделки

Источник


Старт продаж

Возможно заинтересует