Top.Mail.Ru

Производственная ул., д. 1, к. 1

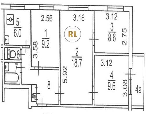
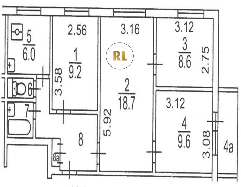
База каталог, Кол-во подъездов: 4, II-49-12, Москва, Солнцево, Пассажирский лифт: 4, От метро: 720, Западный, да, Наименьшее кол-во этажей: 9, Наибольшее кол-во этажей: 9, Солнцево, Кол-во помещений: 148, Кол-во нежилых помещений: 5, Год ввода в эксплуатацию: 1978, 4-комн, Кол-во жилых помещений: 143, дом 1, корпус 1, нет, да, да, да, да, да, Имеется, Грузовых лифтов: 0, Год постройки: 1978, Производственная улица, 37.382070, 55.649947
Свяжитесь со мной на счет цены
10 дн.
V55S649947L37S382070V

На карте


Условия сделки

Источник


Старт продаж

Возможно заинтересует