Top.Mail.Ru

улица Богданова, д. 42

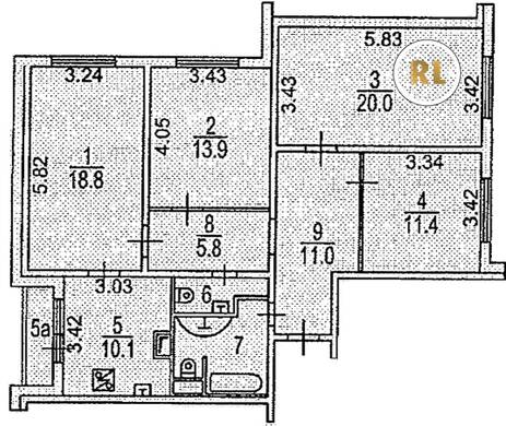
База каталог, Кол-во подъездов: 3, КОПЭ, Москва, Солнцево, Пассажирский лифт: 6, От метро: 310, Западный, да, Наименьшее кол-во этажей: 22, Наибольшее кол-во этажей: 22, Солнцево, Кол-во помещений: 253, Кол-во нежилых помещений: 1, Год ввода в эксплуатацию: 1989, 4-комн, Кол-во жилых помещений: 252, дом 42, да, да, да, да, да, да, Имеется, Грузовых лифтов: 3, Год постройки: 1989, улица Богданова, 37.395635, 55.651811
Свяжитесь со мной на счет цены
10 дн.
V55S651811L37S395635V

На карте


Условия сделки

Источник


Старт продаж

Возможно заинтересует