Top.Mail.Ru

Поречная ул., д. 27, к. 1

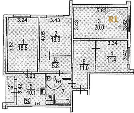
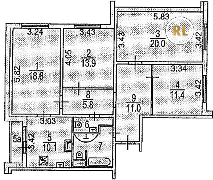
База каталог, Кол-во подъездов: 2, Имеется, КОПЭ, Москва, Марьино, Пассажирский лифт: 4, От метро: 1720, Юго-Восточный, да, Наименьшее кол-во этажей: 22, Наибольшее кол-во этажей: 22, Братиславская, Кол-во помещений: 172, Кол-во нежилых помещений: 4, Год ввода в эксплуатацию: 2000, 4-комн, Кол-во жилых помещений: 168, Не присвоен, дом 27, корпус 1, нет, да, да, да, нет, нет, Имеется, Грузовых лифтов: 2, Год постройки: 2000, Поречная улица, 37.771633, 55.651999
Свяжитесь со мной на счет цены
10 дн.
V55S651999L37S771633V

На карте


Условия сделки

Источник


Старт продаж

Возможно заинтересует