Top.Mail.Ru

Подольская ул., д. 17

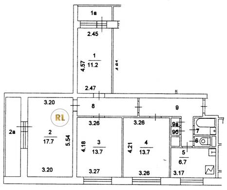
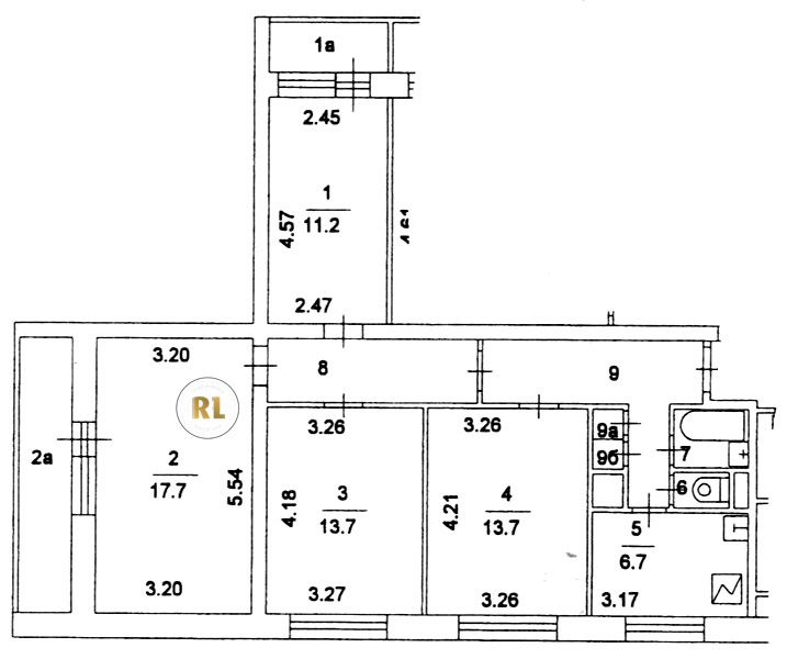
База каталог, Кол-во подъездов: 6, Имеется, I605-АМ, Москва, Марьино, Пассажирский лифт: 6, От метро: 2580, Юго-Восточный, да, Наименьшее кол-во этажей: 12, Наибольшее кол-во этажей: 12, Марьино, Кол-во помещений: 287, Кол-во нежилых помещений: 0, Год ввода в эксплуатацию: 1980, 4-комн, Кол-во жилых помещений: 287, Не присвоен, дом 17, нет, да, да, нет, нет, нет, Имеется, Грузовых лифтов: 6, Год постройки: 1980, Подольская улица, 37.710404, 55.652116
Свяжитесь со мной на счет цены
10 дн.
V55S652116L37S710404V

На карте


Условия сделки

Источник


Старт продаж

Возможно заинтересует