Top.Mail.Ru

Подольская ул., д. 13

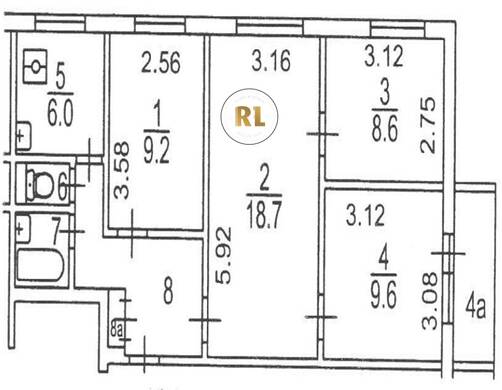
База каталог, Кол-во подъездов: 4, Отсутствует, II-49Д, Москва, Марьино, Площадь парковки: 0, Пассажирский лифт: 4, От метро: 2200, Юго-Восточный, нет, Наименьшее кол-во этажей: 9, Наибольшее кол-во этажей: 9, Марьино, Кол-во помещений: 144, Кол-во нежилых помещений: 0, Год ввода в эксплуатацию: 1980, 4-комн, Кол-во жилых помещений: 144, Не присвоен, дом 13, нет, да, да, нет, нет, нет, Имеется, Грузовых лифтов: 0, Год постройки: 1980, Подольская улица, 37.714761, 55.652278
Свяжитесь со мной на счет цены
10 дн.
V55S652278L37S714761V

На карте


Условия сделки

Источник


Старт продаж

Возможно заинтересует