Top.Mail.Ru

улица 50 лет Октября, д. 19, к. 2

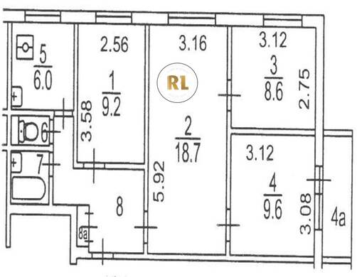
База каталог, Кол-во подъездов: 4, Имеется, II-49-12, Москва, Солнцево, Пассажирский лифт: 4, От метро: 1140, Западный, да, Наименьшее кол-во этажей: 9, Наибольшее кол-во этажей: 9, Говорово, Кол-во помещений: 144, Кол-во нежилых помещений: 1, Год ввода в эксплуатацию: 1969, 4-комн, Кол-во жилых помещений: 143, дом 19, корпус 2, нет, да, да, да, да, нет, Имеется, Грузовых лифтов: 0, Год постройки: 1969, улица 50 лет Октября, 37.411957, 55.653289
Свяжитесь со мной на счет цены
10 дн.
V55S653289L37S411957V

На карте


Условия сделки

Источник


Старт продаж

Возможно заинтересует