Top.Mail.Ru

улица Обручева, д. 28, к. 6

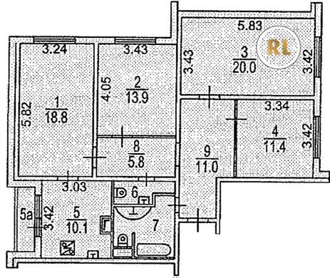
База каталог, Кол-во помещений: 136, КОПЭ, Москва, Обручевский, Площадь парковки: 0, Пассажирский лифт: 2, От метро: 1890, Юго-Западный, нет, Наименьшее кол-во этажей: 0, Наибольшее кол-во этажей: 18, Калужская, Кол-во подъездов: 2, Год ввода в эксплуатацию: 2005, Кол-во нежилых помещений: 0, 4-комн, Кол-во жилых помещений: 136, дом 28, корпус 6, нет, да, да, да, нет, нет, Грузовых лифтов: 2, Год постройки: 2005, улица Обручева, 37.514059, 55.653802
Свяжитесь со мной на счет цены
10 дн.
V55S653802L37S514059V

На карте


Условия сделки

Источник


Старт продаж

Возможно заинтересует