Top.Mail.Ru

Ленинский проспект, д. 152, к. 2

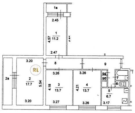
База каталог, Кол-во подъездов: 4, I605-АМ, Москва, Тропарево-Никулино, Площадь парковки: 0, Пассажирский лифт: 4, От метро: 1140, Западный, нет, Наименьшее кол-во этажей: 1, Наибольшее кол-во этажей: 9, Юго-Западная, Кол-во помещений: 148, Кол-во нежилых помещений: 4, Год ввода в эксплуатацию: 1968, 4-комн, Кол-во жилых помещений: 144, Не присвоен, дом 152, корпус 2, нет, да, да, да, да, нет, Грузовых лифтов: 0, Год постройки: 1968, Ленинский проспект, 37.488206, 55.654350
Свяжитесь со мной на счет цены
10 дн.
V55S654350L37S488206V

На карте


Условия сделки

Источник


Старт продаж

Возможно заинтересует