Top.Mail.Ru

Люблинская ул., д. 157, к. 2

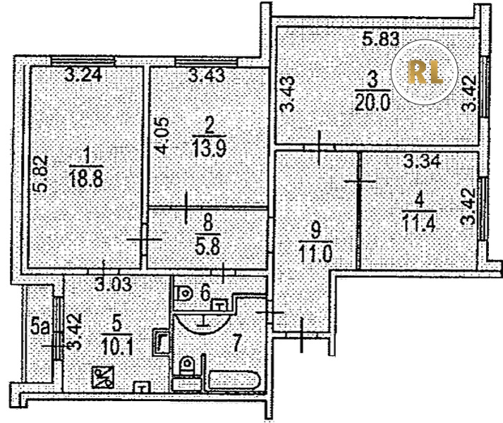
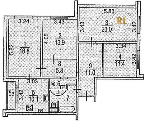
База каталог, Кол-во подъездов: 2, КОПЭ, Москва, Марьино, Площадь парковки: 0, Пассажирский лифт: 3, От метро: 570, Юго-Восточный, нет, Наименьшее кол-во этажей: 18, Наибольшее кол-во этажей: 18, Марьино, Кол-во помещений: 139, Кол-во нежилых помещений: 3, Год ввода в эксплуатацию: 1996, 4-комн, Кол-во жилых помещений: 136, Не присвоен, дом 157, корпус 2, да, да, да, да, да, да, Имеется, Грузовых лифтов: 3, Год постройки: 1996, Люблинская улица, 37.746004, 55.655127
Свяжитесь со мной на счет цены
10 дн.
V55S655127L37S746004V

На карте


Условия сделки

Источник


Старт продаж

Возможно заинтересует