Top.Mail.Ru

Новомарьинская ул., д. 18

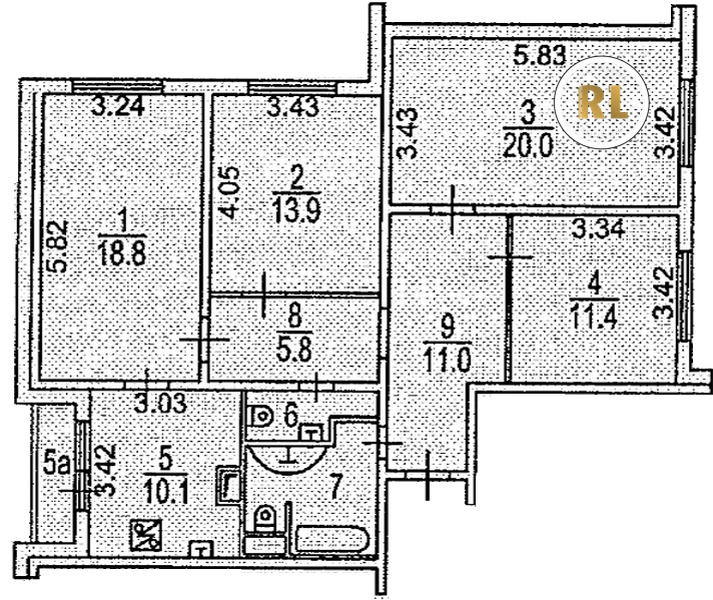
База каталог, Кол-во подъездов: 4, Отсутствует, КОПЭ, Москва, Марьино, Площадь парковки: 0, Пассажирский лифт: 8, От метро: 990, Юго-Восточный, нет, Наименьшее кол-во этажей: 18, Наибольшее кол-во этажей: 18, Братиславская, Кол-во помещений: 278, Кол-во нежилых помещений: 6, Год ввода в эксплуатацию: 1998, 4-комн, Кол-во жилых помещений: 272, D, дом 18, нет, да, да, да, да, да, Имеется, Грузовых лифтов: 4, Год постройки: 1998, Новомарьинская улица, 37.764564, 55.656565
Свяжитесь со мной на счет цены
10 дн.
V55S656565L37S764564V

На карте


Условия сделки

Источник


Старт продаж

Возможно заинтересует