Top.Mail.Ru

улица Обручева, д. 24

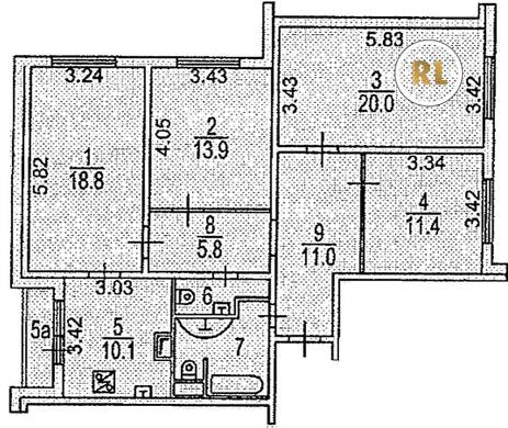
База каталог, Кол-во помещений: 252, КОПЭ, Москва, Обручевский, Площадь парковки: 0, Пассажирский лифт: 6, От метро: 1420, Юго-Западный, нет, Наименьшее кол-во этажей: 0, Наибольшее кол-во этажей: 22, Калужская, Кол-во подъездов: 3, Год ввода в эксплуатацию: 2004, Кол-во нежилых помещений: 0, 4-комн, Кол-во жилых помещений: 252, дом 24, нет, да, да, да, да, нет, Грузовых лифтов: 3, Год постройки: 2004, улица Обручева, 37.518282, 55.657321
Свяжитесь со мной на счет цены
10 дн.
V55S657321L37S518282V

На карте


Условия сделки

Источник


Старт продаж

Возможно заинтересует