Top.Mail.Ru

улица Обручева, д. 22, к. 1

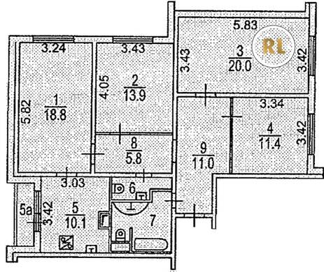
База каталог, Кол-во помещений: 136, КОПЭ, Москва, Обручевский, Площадь парковки: 0, Пассажирский лифт: 4, От метро: 1380, Юго-Западный, нет, Наименьшее кол-во этажей: 0, Наибольшее кол-во этажей: 18, Калужская, Кол-во подъездов: 0, Год ввода в эксплуатацию: 2005, Кол-во нежилых помещений: 0, 4-комн, Кол-во жилых помещений: 136, дом 22, корпус 1, нет, да, да, да, да, нет, Грузовых лифтов: 2, Год постройки: 2005, улица Обручева, 37.517500, 55.657824
Свяжитесь со мной на счет цены
10 дн.
V55S657824L37S517500V

На карте


Условия сделки

Источник


Старт продаж

Возможно заинтересует