Top.Mail.Ru

Азовская ул., д. 9, к. 2

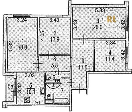
База каталог, Кол-во подъездов: 3, Имеется, КОПЭ, Москва, Зюзино, Площадь парковки: 0, Пассажирский лифт: 6, От метро: 470, Юго-Западный, нет, Наименьшее кол-во этажей: 22, Наибольшее кол-во этажей: 22, Нахимовский проспект, Кол-во помещений: 257, Кол-во нежилых помещений: 5, Год ввода в эксплуатацию: 2005, 4-комн, Кол-во жилых помещений: 252, Не присвоен, дом 9, корпус 2, да, да, да, да, да, да, Имеется, Грузовых лифтов: 3, Год постройки: 2005, Азовская улица, 37.602005, 55.658124
Свяжитесь со мной на счет цены
10 дн.
V55S658124L37S602005V

На карте


Условия сделки

Источник


Старт продаж

Возможно заинтересует