Top.Mail.Ru

улица Обручева, д. 19, к. 3

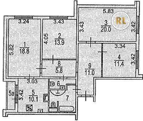
База каталог, Кол-во помещений: 174, КОПЭ, Москва, Обручевский, Площадь парковки: 0, Пассажирский лифт: 4, От метро: 1320, Юго-Западный, нет, Наименьшее кол-во этажей: 0, Наибольшее кол-во этажей: 22, Новаторская, Кол-во подъездов: 2, Год ввода в эксплуатацию: 1999, Кол-во нежилых помещений: 0, 4-комн, Кол-во жилых помещений: 174, дом 19, корпус 3, нет, да, да, да, да, нет, Грузовых лифтов: 2, Год постройки: 1999, улица Обручева, 37.519521, 55.658891
Свяжитесь со мной на счет цены
10 дн.
V55S658891L37S519521V

На карте


Условия сделки

Источник


Старт продаж

Возможно заинтересует