Top.Mail.Ru

Сивашская ул., д. 2, к. 2

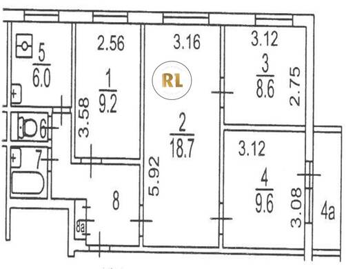
База каталог, Кол-во подъездов: 6, Отсутствует, II-49-12, Москва, Зюзино, Площадь парковки: 0, Пассажирский лифт: 12, От метро: 107, Юго-Западный, нет, Наименьшее кол-во этажей: 12, Наибольшее кол-во этажей: 12, Нахимовский проспект, Кол-во помещений: 285, Кол-во нежилых помещений: 0, Год ввода в эксплуатацию: 1973, 4-комн, Кол-во жилых помещений: 285, Не присвоен, дом 2, корпус 2, да, да, да, да, да, да, Отсутствует, Грузовых лифтов: 0, Год постройки: 1973, Сивашская улица, 37.605598, 55.661191
Свяжитесь со мной на счет цены
10 дн.
V55S661191L37S605598V

На карте


Условия сделки

Источник


Старт продаж

Возможно заинтересует