Top.Mail.Ru

Перекопская ул., д. 34, к. 1

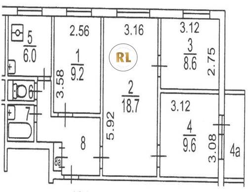
База каталог, Кол-во подъездов: 6, II-49Д, Москва, Черемушки, Площадь парковки: 0, Пассажирский лифт: 6, От метро: 1020, Юго-Западный, нет, Наименьшее кол-во этажей: 9, Наибольшее кол-во этажей: 9, Зюзино, Кол-во помещений: 215, Кол-во нежилых помещений: 0, Год ввода в эксплуатацию: 1976, 4-комн, Кол-во жилых помещений: 215, Не присвоен, дом 34, корпус 1, нет, да, да, да, да, да, Грузовых лифтов: 0, Год постройки: 1976, Перекопская улица, 37.566386, 55.662085
Свяжитесь со мной на счет цены
10 дн.
V55S662085L37S566386V

На карте


Условия сделки

Источник


Старт продаж

Возможно заинтересует