Top.Mail.Ru

Белореченская ул., д. 28, к. 2

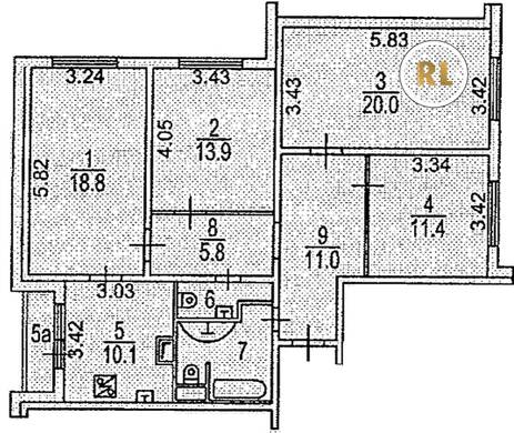
База каталог, Кол-во подъездов: 2, КОПЭ, Москва, Марьино, Пассажирский лифт: 4, От метро: 1430, Юго-Восточный, да, Наименьшее кол-во этажей: 18, Наибольшее кол-во этажей: 22, Братиславская, Кол-во помещений: 333, Кол-во нежилых помещений: 0, Год ввода в эксплуатацию: 2000, 4-комн, Кол-во жилых помещений: 333, Не присвоен, дом 28, корпус 2, нет, да, да, да, да, нет, Грузовых лифтов: 2, Год постройки: 2000, Белореченская улица, 37.768992, 55.663283
Свяжитесь со мной на счет цены
10 дн.
V55S663283L37S768992V

На карте


Условия сделки

Источник


Старт продаж

Возможно заинтересует