Top.Mail.Ru

проспект Вернадского, д. 89, к. 2

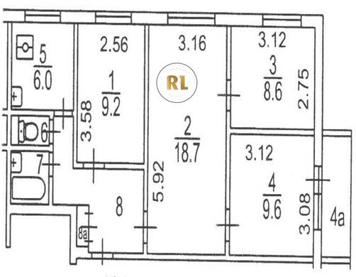
База каталог, Кол-во подъездов: 4, II-49Д, Москва, Тропарево-Никулино, Площадь парковки: 0, Пассажирский лифт: 4, От метро: 1050, Западный, нет, Наименьшее кол-во этажей: 1, Наибольшее кол-во этажей: 9, Юго-Западная, Кол-во помещений: 148, Кол-во нежилых помещений: 4, Год ввода в эксплуатацию: 1969, 4-комн, Кол-во жилых помещений: 144, Не присвоен, дом 89, корпус 2, нет, да, да, да, да, да, Грузовых лифтов: 0, Год постройки: 1969, проспект Вернадского, 37.498743, 55.665492
Свяжитесь со мной на счет цены
10 дн.
V55S665492L37S498743V

На карте


Условия сделки

Источник


Старт продаж

Возможно заинтересует