Top.Mail.Ru

Белореченская ул., д. 22/66

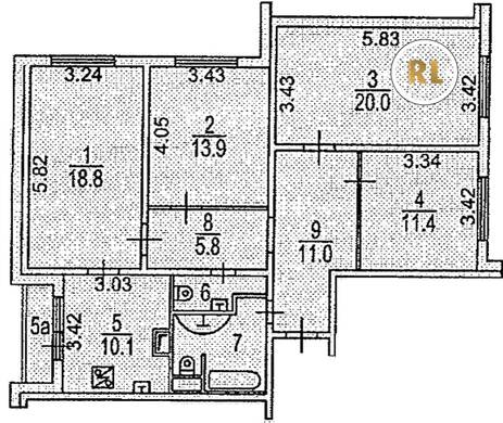
База каталог, Кол-во подъездов: 3, Отсутствует, КОПЭ, Москва, Марьино, Пассажирский лифт: 6, От метро: 1300, Юго-Восточный, да, Наименьшее кол-во этажей: 18, Наибольшее кол-во этажей: 22, Люблино, Кол-во помещений: 241, Кол-во нежилых помещений: 5, Год ввода в эксплуатацию: 2000, 4-комн, Кол-во жилых помещений: 236, дом 22/66, нет, да, да, да, да, нет, Имеется, Грузовых лифтов: 3, Год постройки: 2000, Белореченская улица, 37.768597, 55.665573
Свяжитесь со мной на счет цены
10 дн.
V55S665573L37S768597V

На карте


Условия сделки

Источник


Старт продаж

Возможно заинтересует