Top.Mail.Ru

проспект Вернадского, д. 91, к. 2

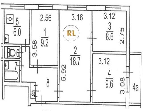
База каталог, Кол-во подъездов: 8, II-49Д, Москва, Тропарево-Никулино, Площадь парковки: 0, Пассажирский лифт: 8, От метро: 900, Западный, нет, Наименьшее кол-во этажей: 1, Наибольшее кол-во этажей: 9, Юго-Западная, Кол-во помещений: 296, Кол-во нежилых помещений: 13, Год ввода в эксплуатацию: 1968, 4-комн, Кол-во жилых помещений: 283, Не присвоен, дом 91, корпус 2, нет, да, да, да, да, да, Грузовых лифтов: 0, Год постройки: 1968, проспект Вернадского, 37.496695, 55.665777
Свяжитесь со мной на счет цены
10 дн.
V55S665777L37S496695V

На карте


Условия сделки

Источник


Старт продаж

Возможно заинтересует