Top.Mail.Ru

проспект Вернадского, д. 99, к. 1

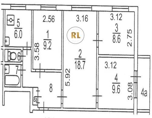
База каталог, Кол-во подъездов: 8, II-49, Москва, Тропарево-Никулино, Площадь парковки: 0, Пассажирский лифт: 8, От метро: 570, Западный, нет, Наименьшее кол-во этажей: 9, Наибольшее кол-во этажей: 9, Юго-Западная, Кол-во помещений: 288, Кол-во нежилых помещений: 2, Год ввода в эксплуатацию: 1968, 4-комн, Кол-во жилых помещений: 286, Не присвоен, дом 99, корпус 1, да, да, да, да, да, да, Грузовых лифтов: 0, Год постройки: 1968, проспект Вернадского, 37.490515, 55.666081
Свяжитесь со мной на счет цены
10 дн.
V55S666081L37S490515V

На карте


Условия сделки

Источник


Старт продаж

Возможно заинтересует