Top.Mail.Ru

Краснодарская ул., д. 78

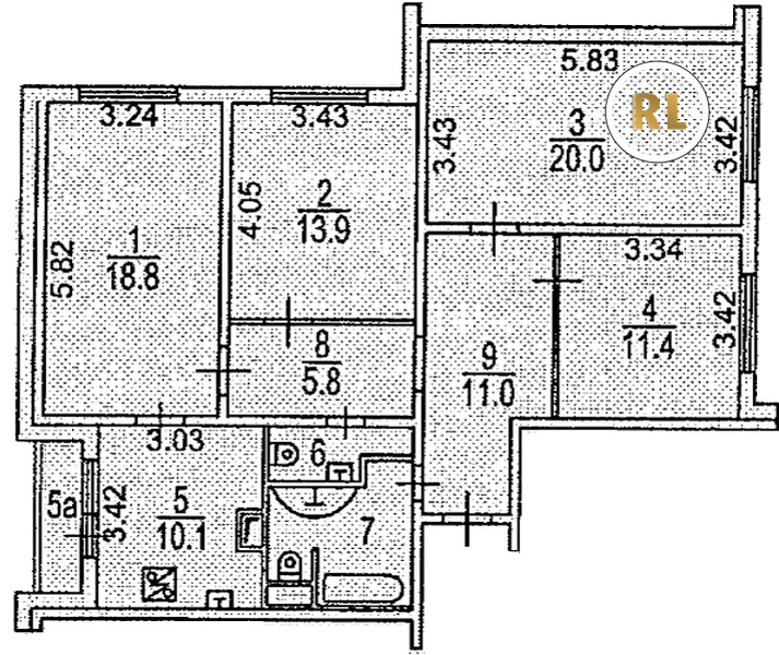
База каталог, Кол-во подъездов: 1, Имеется, КОПЭ, Москва, Люблино, Пассажирский лифт: 0, От метро: 1870, Юго-Восточный, да, Наименьшее кол-во этажей: 0, Наибольшее кол-во этажей: 0, Люблино, Кол-во помещений: 0, Кол-во нежилых помещений: 0, Год ввода в эксплуатацию: 2003, 4-комн, Кол-во жилых помещений: 0, дом 78, нет, да, да, да, нет, нет, Отсутствует, Грузовых лифтов: 0, Год постройки: 2003, Краснодарская улица, 37.782952, 55.666858
Свяжитесь со мной на счет цены
10 дн.
V55S666858L37S782952V

На карте


Условия сделки

Источник


Старт продаж

Возможно заинтересует