Top.Mail.Ru

улица Верхние Поля, д. 36, к. 2

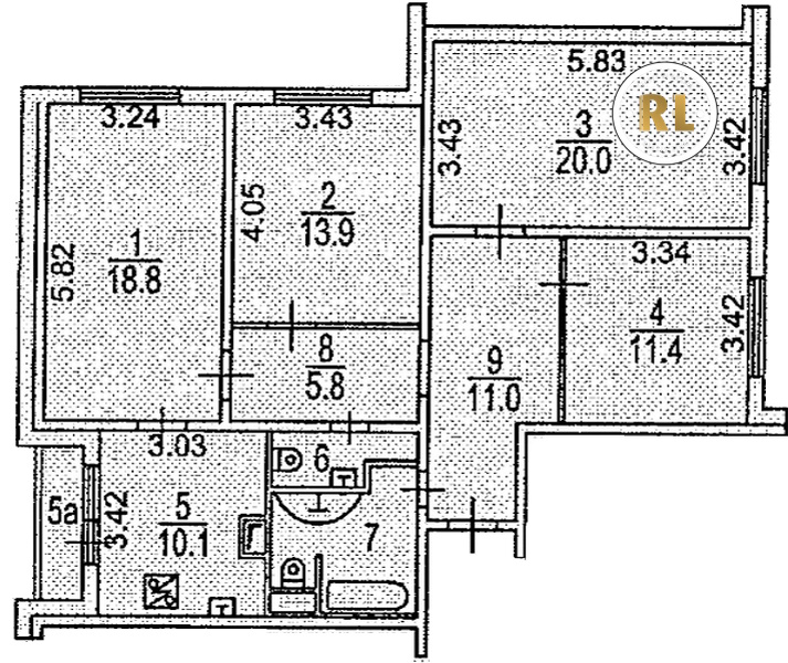
База каталог, Кол-во помещений: 522, Имеется, КОПЭ, Москва, Марьино, Площадь парковки: 0, Пассажирский лифт: 12, От метро: 1010, Юго-Восточный, нет, Наименьшее кол-во этажей: 1, Наибольшее кол-во этажей: 22, Люблино, Кол-во подъездов: 6, Год ввода в эксплуатацию: 2000, Кол-во нежилых помещений: 8, 4-комн, Кол-во жилых помещений: 514, дом 36, корпус 2, нет, да, да, да, да, да, Имеется, Грузовых лифтов: 6, Год постройки: 2000, улица Верхние Поля, 37.763594, 55.666990
Свяжитесь со мной на счет цены
10 дн.
V55S666990L37S763594V

На карте


Условия сделки

Источник


Старт продаж

Возможно заинтересует