Top.Mail.Ru

улица Академика Миллионщикова, д. 18

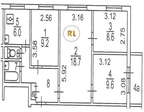
База каталог, Кол-во помещений: 501, II-49Д, Москва, Нагатино-Садовники, Площадь парковки: 0, Пассажирский лифт: 14, От метро: 2050, Южный, нет, Наименьшее кол-во этажей: 9, Наибольшее кол-во этажей: 9, Каширская, Кол-во подъездов: 14, Год ввода в эксплуатацию: 1978, Кол-во нежилых помещений: 0, 4-комн, Кол-во жилых помещений: 501, дом 18, нет, да, да, да, нет, нет, Грузовых лифтов: 0, Год постройки: 1978, улица Академика Миллионщикова, 37.643588, 55.667198
Свяжитесь со мной на счет цены
10 дн.
V55S667198L37S643588V

На карте


Условия сделки

Источник


Старт продаж

Возможно заинтересует