Top.Mail.Ru

улица Академика Миллионщикова, д. 16

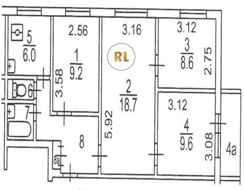
База каталог, Кол-во помещений: 283, II-49Д, Москва, Нагатино-Садовники, Площадь парковки: 0, Пассажирский лифт: 8, От метро: 1990, Южный, нет, Наименьшее кол-во этажей: 9, Наибольшее кол-во этажей: 9, Каширская, Кол-во подъездов: 8, Год ввода в эксплуатацию: 1973, Кол-во нежилых помещений: 0, 4-комн, Кол-во жилых помещений: 283, дом 16, нет, да, да, да, нет, нет, Грузовых лифтов: 0, Год постройки: 1973, улица Академика Миллионщикова, 37.646651, 55.668310
Свяжитесь со мной на счет цены
10 дн.
V55S668310L37S646651V

На карте


Условия сделки

Источник


Старт продаж

Возможно заинтересует