Top.Mail.Ru

Белореченская ул., д. 33

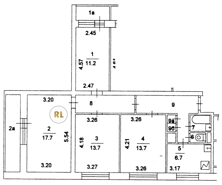
База каталог, Кол-во подъездов: 4, Отсутствует, I605-АМ, Москва, Люблино, Площадь парковки: 0, Пассажирский лифт: 4, От метро: 770, Юго-Восточный, нет, Наименьшее кол-во этажей: 0, Наибольшее кол-во этажей: 12, Люблино, Кол-во помещений: 189, Кол-во нежилых помещений: 0, Год ввода в эксплуатацию: 1981, 4-комн, Кол-во жилых помещений: 189, Не присвоен, дом 33, нет, да, да, да, да, да, Имеется, Грузовых лифтов: 4, Год постройки: 1981, Белореченская улица, 37.764636, 55.669549
Свяжитесь со мной на счет цены
10 дн.
V55S669549L37S764636V

На карте


Условия сделки

Источник


Старт продаж

Возможно заинтересует