Top.Mail.Ru

Никулинская ул., д. 27, к. 1

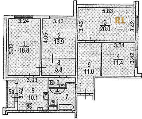
База каталог, Кол-во подъездов: 2, КОПЭ, Москва, Тропарево-Никулино, Площадь парковки: 0, Пассажирский лифт: 1, От метро: 155, Западный, нет, Наименьшее кол-во этажей: 0, Наибольшее кол-во этажей: 18, Озёрная, Кол-во помещений: 136, Кол-во нежилых помещений: 0, Год ввода в эксплуатацию: 1999, 4-комн, Кол-во жилых помещений: 136, D, дом 27, корпус 1, да, да, да, да, да, да, Грузовых лифтов: 1, Год постройки: 1999, Никулинская улица, 37.452121, 55.670001
Свяжитесь со мной на счет цены
10 дн.
V55S670001L37S452121V

На карте


Условия сделки

Источник


Старт продаж

Возможно заинтересует