Top.Mail.Ru

Белореченская ул., д. 29

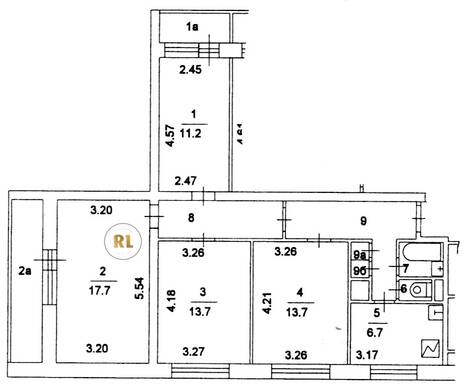
База каталог, Кол-во подъездов: 2, Имеется, I605-АМ, Москва, Люблино, Площадь парковки: 0, Пассажирский лифт: 2, От метро: 810, Юго-Восточный, нет, Наименьшее кол-во этажей: 0, Наибольшее кол-во этажей: 12, Люблино, Кол-во помещений: 96, Кол-во нежилых помещений: 0, Год ввода в эксплуатацию: 1981, 4-комн, Кол-во жилых помещений: 96, Не присвоен, дом 29, нет, да, да, да, да, да, Отсутствует, Грузовых лифтов: 0, Год постройки: 1981, Белореченская улица, 37.766693, 55.670052
Свяжитесь со мной на счет цены
10 дн.
V55S670052L37S766693V

На карте


Условия сделки

Источник


Старт продаж

Возможно заинтересует