Top.Mail.Ru

Никулинская ул., д. 27, к. 2

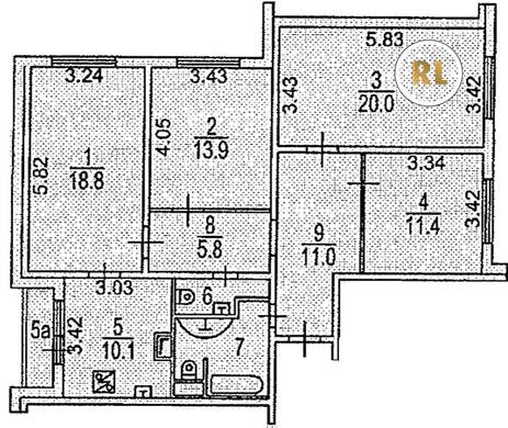
База каталог, Кол-во подъездов: 3, КОПЭ, Москва, Тропарево-Никулино, Площадь парковки: 0, Пассажирский лифт: 2, От метро: 139, Западный, нет, Наименьшее кол-во этажей: 0, Наибольшее кол-во этажей: 19, Озёрная, Кол-во помещений: 0, Кол-во нежилых помещений: 0, Год ввода в эксплуатацию: 1999, 4-комн, Кол-во жилых помещений: 0, D, дом 27, корпус 2, да, да, да, да, да, да, Грузовых лифтов: 2, Год постройки: 1999, Никулинская улица, 37.451357, 55.670270
Свяжитесь со мной на счет цены
10 дн.
V55S670270L37S451357V

На карте


Условия сделки

Источник


Старт продаж

Возможно заинтересует