Top.Mail.Ru

улица Академика Пилюгина, д. 14, к. 4

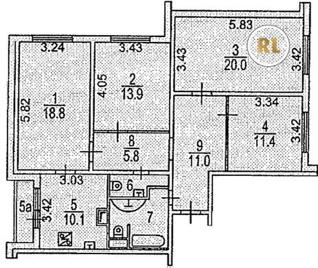
База каталог, Кол-во подъездов: 3, КОПЭ, Москва, Ломоносовский, Площадь парковки: 0, Пассажирский лифт: 6, От метро: 1200, Юго-Западный, нет, Наименьшее кол-во этажей: 22, Наибольшее кол-во этажей: 22, Новаторская, Кол-во помещений: 263, Кол-во нежилых помещений: 2, Год ввода в эксплуатацию: 1986, 4-комн, Кол-во жилых помещений: 261, Не присвоен, дом 14, корпус 4, нет, да, да, да, да, нет, Грузовых лифтов: 3, Год постройки: 1986, улица Академика Пилюгина, 37.533185, 55.671422
Свяжитесь со мной на счет цены
10 дн.
V55S671422L37S533185V

На карте


Условия сделки

Источник


Старт продаж

Возможно заинтересует