Top.Mail.Ru

Белореченская ул., д. 21

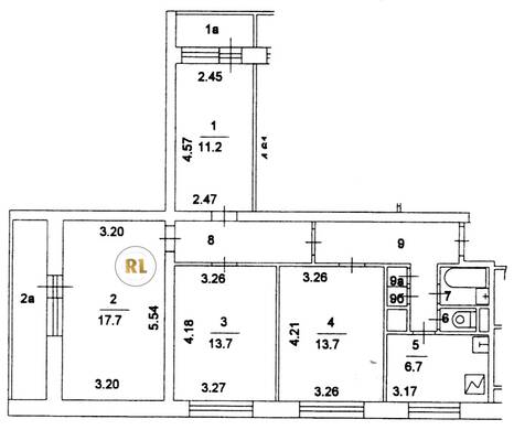
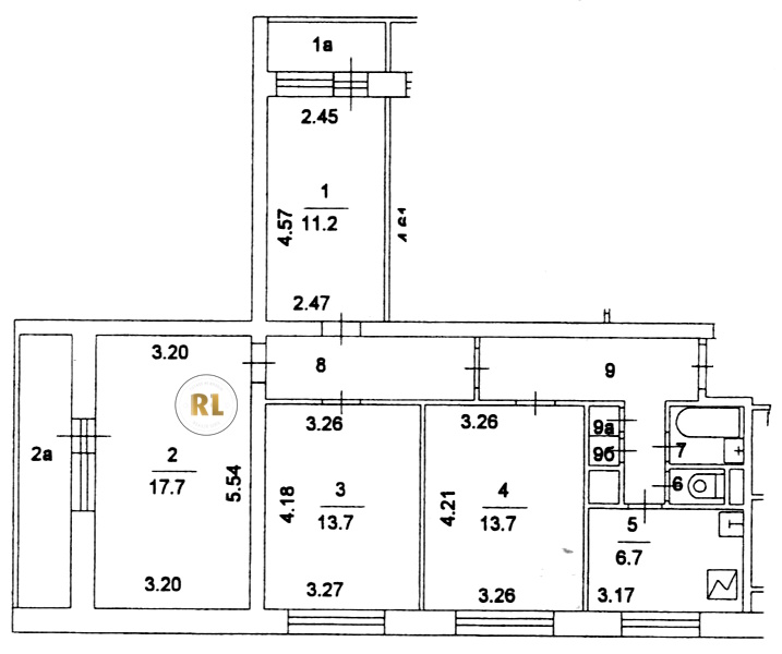
База каталог, Кол-во помещений: 191, I605-АМ, Москва, Люблино, Площадь парковки: 0, Пассажирский лифт: 4, От метро: 670, Юго-Восточный, нет, Наименьшее кол-во этажей: 12, Наибольшее кол-во этажей: 12, Люблино, Кол-во подъездов: 4, Год ввода в эксплуатацию: 1981, Кол-во нежилых помещений: 0, 4-комн, Кол-во жилых помещений: 191, дом 21, нет, да, да, да, да, да, Грузовых лифтов: 4, Год постройки: 1981, Белореченская улица, 37.766468, 55.671453
Свяжитесь со мной на счет цены
10 дн.
V55S671453L37S766468V

На карте


Условия сделки

Источник


Старт продаж

Возможно заинтересует