Top.Mail.Ru

Белореченская ул., д. 6

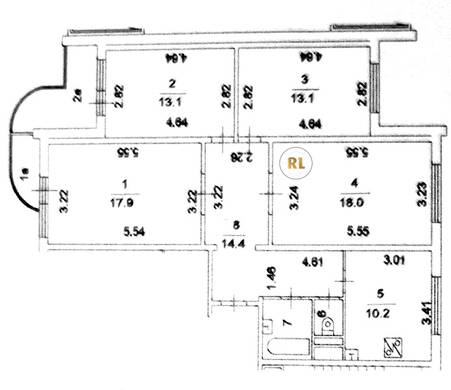
База каталог, Кол-во подъездов: 8, Имеется, П-3M, Москва, Люблино, Площадь парковки: 0, Пассажирский лифт: 8, От метро: 420, Юго-Восточный, нет, Наименьшее кол-во этажей: 0, Наибольшее кол-во этажей: 17, Люблино, Кол-во помещений: 0, Кол-во нежилых помещений: 0, Год ввода в эксплуатацию: 2003, 4-комн, Кол-во жилых помещений: 0, Не присвоен, дом 6, да, да, да, да, да, да, Имеется, Грузовых лифтов: 8, Год постройки: 2003, Белореченская улица, 37.764680, 55.673747
Свяжитесь со мной на счет цены
10 дн.
V55S673747L37S764680V

На карте


Условия сделки

Источник


Старт продаж

Возможно заинтересует