Top.Mail.Ru

улица Полбина, д. 56

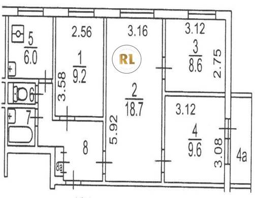
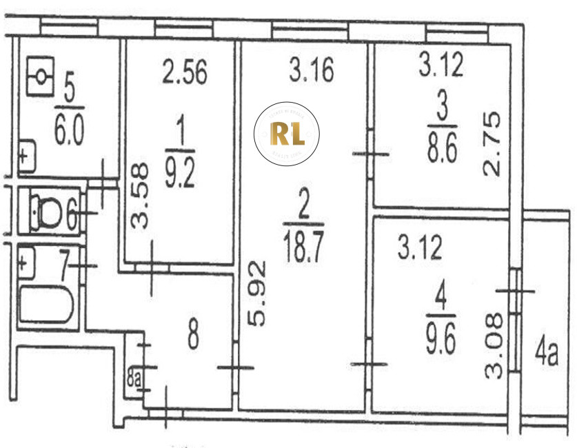
База каталог, Кол-во подъездов: 4, Имеется, II-49, Москва, Печатники, Площадь парковки: 0, Пассажирский лифт: 4, От метро: 2020, Юго-Восточный, нет, Наименьшее кол-во этажей: 9, Наибольшее кол-во этажей: 9, Печатники, Кол-во помещений: 144, Кол-во нежилых помещений: 0, Год ввода в эксплуатацию: 1970, 4-комн, Кол-во жилых помещений: 144, D, дом 56, нет, да, да, да, нет, нет, Отсутствует, Грузовых лифтов: 0, Год постройки: 1970, улица Полбина, 37.725406, 55.675636
Свяжитесь со мной на счет цены
10 дн.
V55S675636L37S725406V

На карте


Условия сделки

Источник


Старт продаж

Возможно заинтересует