Top.Mail.Ru

Шоссейная ул., д. 47

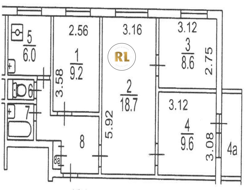
База каталог, Кол-во подъездов: 4, Имеется, II-49, Москва, Печатники, Площадь парковки: 0, Пассажирский лифт: 4, От метро: 1960, Юго-Восточный, нет, Наименьшее кол-во этажей: 9, Наибольшее кол-во этажей: 9, Печатники, Кол-во помещений: 144, Кол-во нежилых помещений: 1, Год ввода в эксплуатацию: 1970, 4-комн, Кол-во жилых помещений: 143, D, дом 47, нет, да, да, да, нет, нет, Имеется, Грузовых лифтов: 0, Год постройки: 1970, Шоссейная улица, 37.723852, 55.675819
Свяжитесь со мной на счет цены
10 дн.
V55S675819L37S723852V

На карте


Условия сделки

Источник


Старт продаж

Возможно заинтересует