Top.Mail.Ru

Нагорная ул., д. 17, к. 5

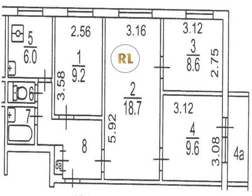
База каталог, Кол-во подъездов: 6, II-49Д, Москва, Котловка, Площадь парковки: 0, Пассажирский лифт: 6, От метро: 830, Юго-Западный, нет, Наименьшее кол-во этажей: 9, Наибольшее кол-во этажей: 9, Нагорная, Кол-во помещений: 205, Кол-во нежилых помещений: 0, Год ввода в эксплуатацию: 1980, 4-комн, Кол-во жилых помещений: 205, E, дом 17, корпус 5, нет, да, да, да, да, да, Грузовых лифтов: 0, Год постройки: 1980, Нагорная улица, 37.607152, 55.676316
Свяжитесь со мной на счет цены
10 дн.
V55S676316L37S607152V

На карте


Условия сделки

Источник


Старт продаж

Возможно заинтересует