Top.Mail.Ru

Краснодарская ул., д. 20/1

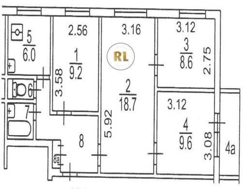
База каталог, Кол-во подъездов: 6, Отсутствует, II-49Д, Москва, Люблино, Площадь парковки: 0, Пассажирский лифт: 6, От метро: 760, Юго-Восточный, нет, Наименьшее кол-во этажей: 0, Наибольшее кол-во этажей: 9, Люблино, Кол-во помещений: 212, Кол-во нежилых помещений: 0, Год ввода в эксплуатацию: 1974, 4-комн, Кол-во жилых помещений: 212, Не присвоен, дом 20/1, нет, да, да, да, да, да, Отсутствует, Грузовых лифтов: 0, Год постройки: 1974, Краснодарская улица, 37.750469, 55.677209
Свяжитесь со мной на счет цены
10 дн.
V55S677209L37S750469V

На карте


Условия сделки

Источник


Старт продаж

Возможно заинтересует